


193 891 ₽/м²
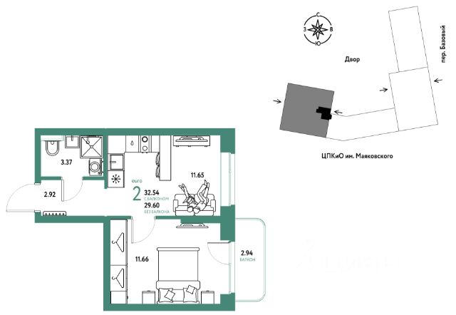
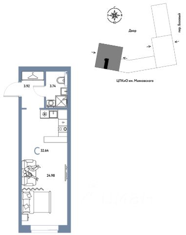
Продаётся 4-комнатная квартира в строящемся доме (Арт-Квартал (3 этап)), срок сдачи: III-кв. 2028, общей площадью 76.79 кв.м., на 7 этаже. Новые жилые дома от Группы компаний "Страна Девелопмент" расположены в Октябрьском районе Екатеринбурга в границах ул. Сибирский тракт - Базовый переулок.










































































































