


162 500 ₽/м²
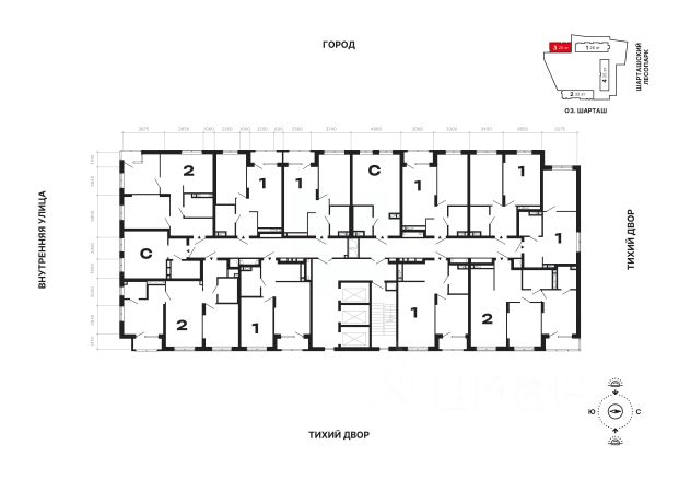
Продаётся квартира в Квартал-парк "Каменные палатки" от застройщика BAZA Development (покупка квартиры защищена банком). 1-комнатная квартира, 42,08 м², 32, 4 очередь, 13 секция. Стоимость указана с учетом отделки white box. СВОДКА О ПРОЕКТЕ: Квартал-парк "Каменные палатки" — проект квартальной застройки комфорт-класса в виде отдельных зданий-секций разной этажности с собственной инфраструктурой, выходом в лесопарковую зону и озеру Шарташ. На данный момент идет застройка 4 очереди, где стартовали продажи 13 секции под управлением застройщика BAZA Development. Этажность: 25 Адрес: ул. Высоцкого 7/3 ОСОБЕННОСТИ: - Лесопарк "Каменные палатки" и озеро "Шарташ" в шаговой доступности. - Закрытая территория с собственным выходом в лес. Стилобат с объектами социальной и бытовой инфраструктуры, а также несколько детских площадок. - Собственный детский сад на 200 мест во дворе. - Видеонаблюдение, охрана. Вход только по смарт-ключам. - Комьюнити центр - бесплатное пространство для совместной работы, общения и отдыха прямо в доме. - Управляющая компания от BAZA. Мероприятия для жителей, собственное приложение для дистанционного решения вопросов, регулярные собрания и сбор обратной связи, офис прямо в доме для оперативного решения вопросов. - Трехступенчатая система дополнительной очистки воды. УДОБНЫЕ СПОСОБЫ ПОКУПКИ: Все прелести ДДУ: регистрация в Росреестре, защита 214ФЗ Фиксация цены. Цены на недвижимость растут, но не для вас! Помощь с продажей вторичной недвижимости Материнский капитал Трейд-ин: выкуп вашей квартиры и дальнейшее зачисление средств в счет стоимости новой Звоните, ответим на все вопросы!


























































































































































