


165 548 ₽/м²
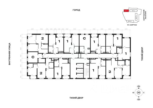
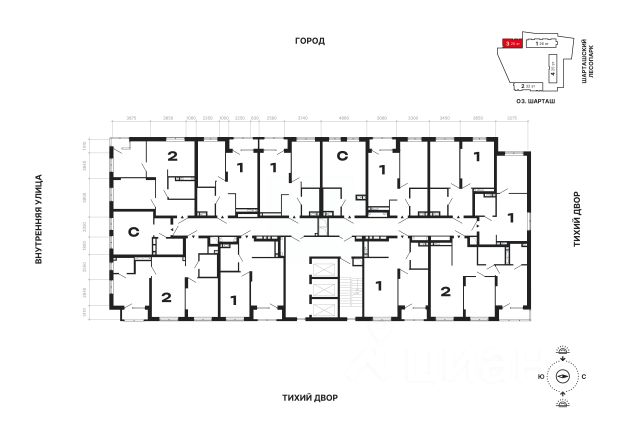
Функциональная квартира с кухней-гостиной и гардеробной в спальне — превосходное решение для тех, кто ценит комфорт и стремится к организованной жизни, где каждый элемент интерьера служит улучшению повседневного опыта. Кухня-гостиная объединяет пространство для кулинарных экспериментов и уютных встреч с друзьями. Просторная гардеробная предоставляет возможность организовать хранение одежды, обуви и аксессуаров, освобождая основное пространство комнаты от лишних вещей. Квартира располагается в ЖК "Комсомольский" — жилом комплексе комфорт-класса. Здесь вы будете наслаждаться беззаботной жизнью, ведь ваш дом — воплощение практичности, безопасности и надежности. Для удобства предусмотрены колясочные на первых этажах домов, где можно оставить велосипеды и коляски в тепле. За безопасность отвечают система электронных ключей и видеонаблюдение. Еще здесь собственная котельная, поэтому в доме всегда будут горячая вода и оплата счетов только за фактически потребленное тепло. ПРЕИМУЩЕСТВА ЖК На этаже 14 квартир Красивые и функциональные парадные с мягкой и стильной зоной для отдыха, книгообменником, встроенными почтовыми ящиками и нишами для сумок Колясочные с доступом по ключу IP-домофоны Тихие лифты с плавным ходом О ПРОЕКТЕ ЖК "Комсомольский" строится в спокойном Кировском районе Екатеринбурга в границах улиц Сыромолотова — Рассветная — 40-лет Комсомола. Комплекс состоит из трех домов переменной этажности, которые выделяются динамичными линиями, выразительными фасадами и стильными лоджиями. ЛОКАЦИЯ Всё, что необходимо для повседневной жизни, находится недалеко от дома: школы, детские сады, продуктовые магазины, фитнес-клубы. Дорога до центра города на машине займет всего 10 минут — достаточно повернуть с улицы 40-летия Комсомола на улицу Владимира Высоцкого. Рядом с этим перекрестком начинается "Тропа здоровья" — большой терренкур вдоль "Каменных палаток". 10 мин до центра 3-4 минуты до школы No 82, гимназии No 176 4-5 минут до детских садов No 208, No 583, 266 20 мин до Свердловского областного медицинского колледжа и Центральной городской больницы No 7 В рамках стратегического развития района на первых этажах домов появятся коммерческие помещения, в которых откроются магазины и кафе. Следует учесть, что к 2030 году в Кировском районе планируется формирование регионального рекреационно-оздоровительного кластера, строительство ветки метро, расширение и модернизация старых промышленных зон социальной и бизнес-инфраструктуры, что приведет к созданию комфортной среды для жизни. Кроме того, в стратегию входит развитие Шарташского лесного парка как центра регионального и международного туризма. СПОСОБЫ ПОКУПКИ Ипотека: подберем выгодные условия в нескольких банках, чтобы вы могли выбрать лучшее Материнский капитал: можно использовать в качестве первоначального взноса Рассрочка: платите частями без % Сертификаты: позволяют оплатить часть стоимости квартиры О КОМПАНИИ "Паритет Девелопмент" — это современный и ответственный подход





















































































































































