


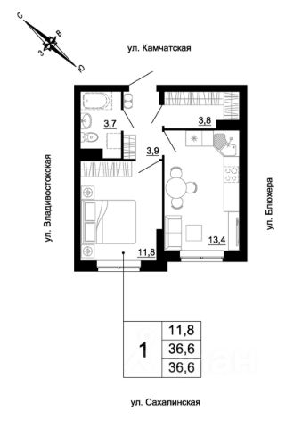
181 436 ₽/м²
Квартира в ЖК "ОК: Премиум" в Пионерском микрорайоне от застройщика TEN девелопмент! Ключи во 2 квартале 2027 года. ЖК "ОК: Премиум" - это продолжение квартала, украсившего локацию Основинского парка, включающего 5 домов высотой от 14 до 31 этажей. Спокойный архитектурный облик, классические линии и формы, гармоничное сочетание цветовых решений все подчеркивает респектабельный характер второй очереди жилого комплекса "Основинские кварталы". Вдохновение природой Здесь не просто ландшафтное озеленение, а целые коллекции цветов и деревьев - различные сорта яблонь, сирени, гортензий и других растений - настоящий питомник в собственном дворе! Двор закрыт от машин и посторонних, при этом учтены интересы всех жителей как маленьких, так и взрослых. Разнообразные динамичные площадки для игр, ворк-аут зоны, амфитеатр, площадка для йоги не только созерцать, но и наслаждаться активным отдыхом! Контроль доступа, видеонаблюдение и круглосуточная охрана обеспечат безопасность для себя и близких. Спокойствие и респектабельность Входные группы прозрачные и расположены на уровне тротуара, чтобы было удобно завозить коляску или велосипед. Дизайн холлов выполнен в классическом выдержанном стиле. Для удобства жителей здесь есть мягкие зоны, колясочная и лапомойка, для автолюбителей - подземный паркинг. Свобода без ограничений Разнообразие планировочных решений позволит воплотить любые идеи и желания: насладиться видами с собственной террасы, обустроить второй уровень с потолком под 3,5 м, реализовать самые смелые дизайнерские решения. Отделка под чистовую. В санузле — монолитный потолок, на полу — гидроизоляция и стяжка, стены оштукатурены. В одном санузле установлены унитаз и раковина. В остальных помещениях потолок — монолит, на полу — стяжка, стены оштукатурены. Выгодные условия оплаты: - акционные предложения - ипотека от ведущих банков - рассрочка от застройщика - трейд-ин Звоните или оставляйте заявку, чтобы узнать больше и забронировать квартиру!

































































































